Q
u
e
n
t
i
n
S
o
m
m
e
r
v
o
g
e
l
A
r
c
h
i
t
e
c
t
u
r
e
Index
Infos
Archive
PLANS
AXO
VUES 3D
PHOTOS
57
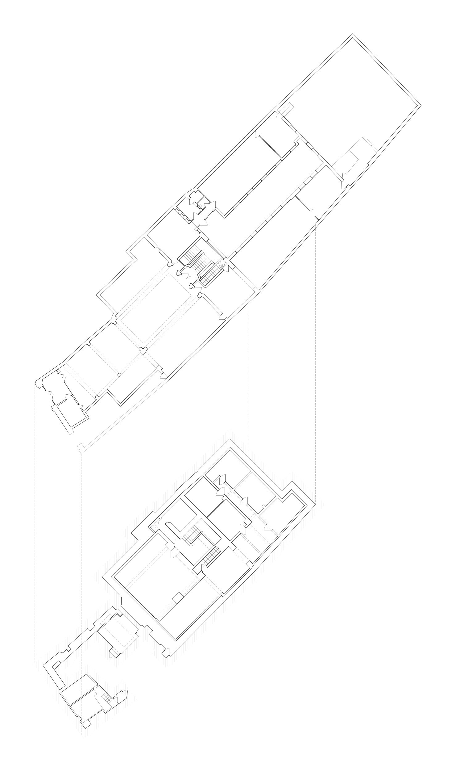
Commerce place d'Allier
+
Projet
Division et préparation de coques commerciales
Date
2019
Lieu
Place d'Allier, Moulins 03
Surface
1 117 m²
Coût
446 K€HT
Equipe
QSA
Images
Etienne Gozard
Statut
Études
1
/6